Verno
13810 € – 22609 €Price range: 13810 € through 22609 €
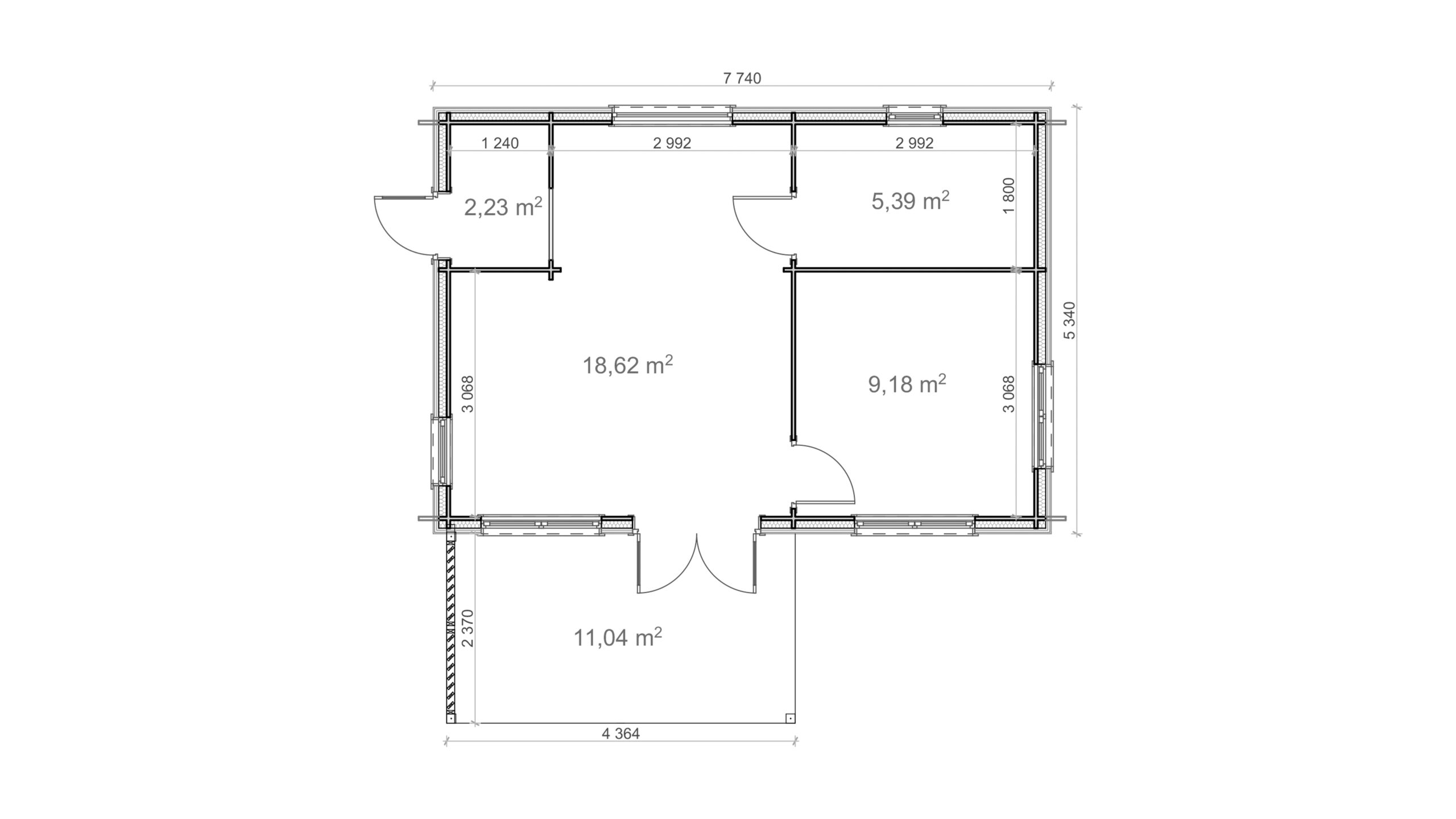
The Verno model combines Scandinavian design with practical functionality. It boasts a fully insulated structure, vertical wood cladding, and a gently sloping roof. Inside, you’ll discover a bright living space, a separate bedroom, a bathroom, and access to a covered outdoor terrace.
What is Included in:
- Floor bearers, floor & roof boards, walls, roof purlins
- Premium plus windows & doors
- Terrace with roof
- 10cm roof insulation kit
- 10cm floor insulation kit
- 10cm wall insulation kit
- Bitumen roof shingles & underlayer
- Metal window sills (outside)
SKU: S37523
Categories: All Season Homes, Featured, Houses, Log cabins
Additional information
| Construction Type | Wooden Logs |
|---|---|
| Inside Area | 35,42 m² |
| Building Size (Width x Length) | 5,34×7,74 m |
| Height | 3,2 m |
| Roof Area | 59,0 m² |
| Roof boards thickness | 19 mm |
| Wall Height | 2,3 m |
| External wall area | 52,0 m² |
| Floor Thickness | 19 mm |
| Number of Rooms | 3 |
| Warranty | 60 months |
| Choose a set | Economic, Premium |









